6910 Carter Road Beulah MI 49617
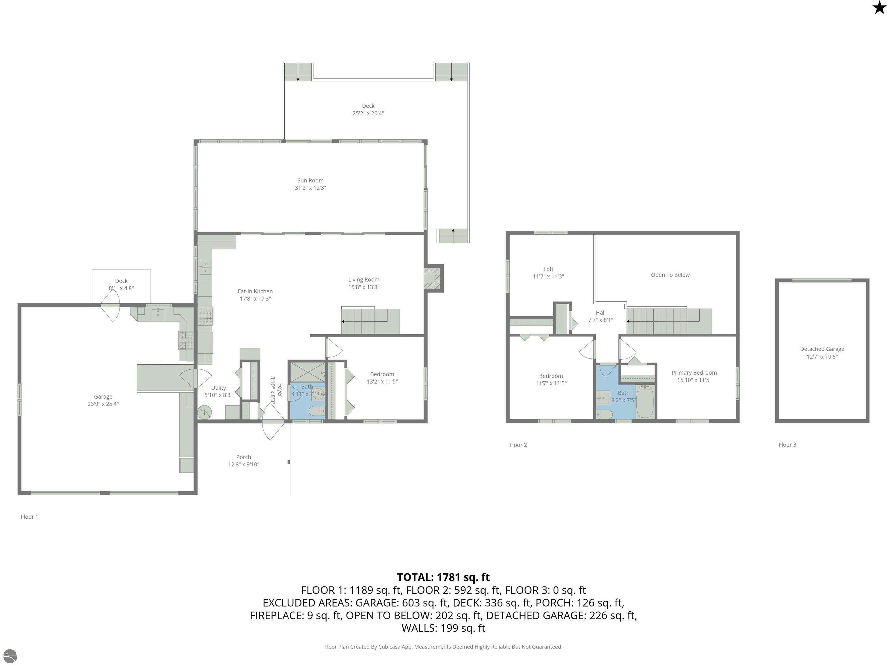
Waterfront 3 BR, 2 BA home with 100 ft private frontage on all-sports Big Platte Lake near the Sleeping Bear Dunes National Lakeshore in Benzie County. Sweeping views across the entire lake from this quiet setting off the main road. Hard sandy-bottom lakefront with seawall and concrete ramp. Year-round home is turnkey with furnishings and features a lakeside sunroom, all new windows, new kitchen and appliances, and new maintenance free Trek decking. The living room cathedral ceiling rises above a fireplace with a WIFI controlled Majestic furnace insert for whole house heat upon demand. An upstairs loft lends bonus sleeping space. Refresh the interior with your personal touches. The 2-car, insulated, attached garage has a kitchen for summer get-togethers. Store the boats and yard equipment in the detached garage. Nice level front and back yards for recreation. Big Platte Lake is known for boating, swimming and fishing. Kayak down the Platte River to Lake Michigan from here.
Property Details
Listing Price: $1,100,000
Address: 6910 Carter Road Beulah MI 49617
City: Beulah
County: Benzie
School District: Benzie County Central Schools
Type of Property: Residential
Style: 1.5 Story
Garage: 2
Basement: Crawl Space
Water: None
Heating/Cooling: Baseboard,Other
Road: Public Maintained,Blacktop
Sewer: Holding Tank/Pump & Haul
Laundry Level: Main Floor
Square Feet: 1,784 Sqft
Bedrooms: 3
Bathrooms: 2
MLS #: 1939037
Parcel Size: 0.43
Siding: None
Living Room: 13.6 x 19.6
Dining Room: x comb
Kitchen: 15.8 x 11.10
Family Room: 12 x 32
Master Room: 11.5 x 10.10
Bedroom 2: 11.6 x 11.6
Bedroom 3: 10.10 x 11.6
Bedroom 4: 9.7 x 11.8































